Проект дома Ясень+ МД-2,0-48.

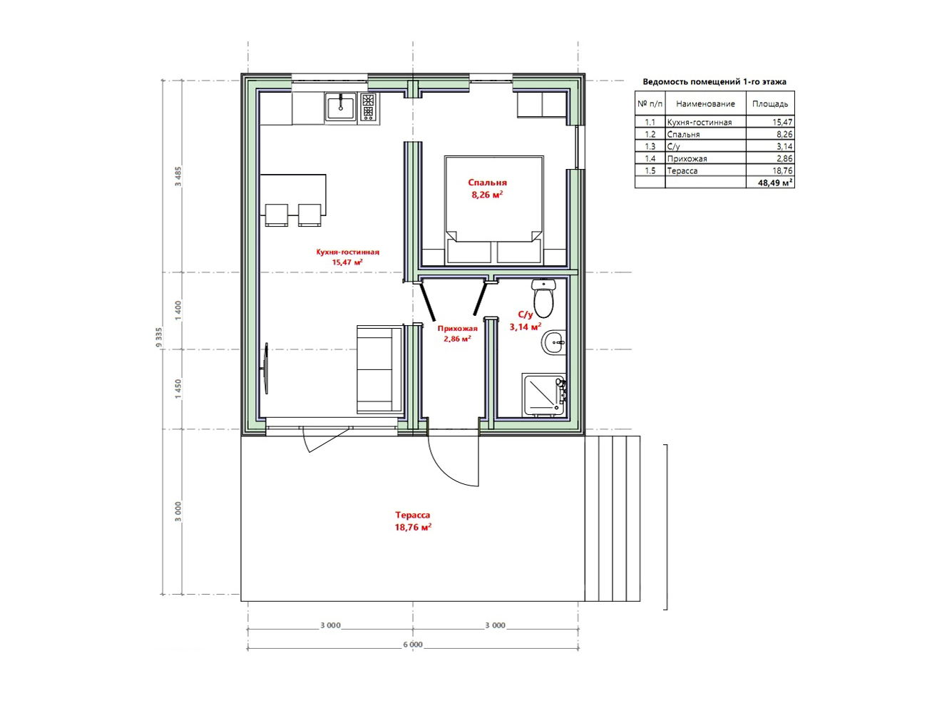
Дом с одной спальней и открытой террасой общей площадью площадью 48м2.

Этот вариант подходит для комфортного проживания двух человек, а так же отлично подойдёт для глемпинга. В данном проекте просторная кухня-гостиная, небольшая отдельная спальня и совмещённый санузел. Изолированная прихожая защитит от сквозняком при открывании входной двери.

Базовая комплектация включает в себя полностью готовый к проживанию дом с утеплением, окнами, межкомнатными дверьми, внешней и внутренней отделкой с покраской до монтажа, а так же разводку труб канализации и водоснабжения, сантехнику (унитаз, раковину, душевую систему с поддоном и душевой перегородкой, а так же электрический накопительный водонагреватель 30л.), базовый пакет электрики (розетки, выключатели, светильники) и систему вентиляции.
Подробнее о проекте.

Площадь помещений: 29,73м2.
Общая площадь, включая террасу: 48,49м2.
Высота потолков: 2,73м.
Утепление: Стены 150мм, пол и потолок 200мм.

В базовую комплектацию включено:

Полы:
- Основание из сухой строганой доски 195*45мм.
- Защитная сетка от грызунов.
- Ветро-влагозащита Ondutiss Smart A c проклейкой стыков лентой.
- Утепление минеральной ватой Rockwool Лайт Баттс 200мм.
- Пароизоляция Ondutiss Smart B c проклейкой стыков лентой.
- Обрешётка сухой строганой доской.
- OSB-3 в сухих помещениях и ГВЛ во влажных.
- Ламинат 33 класса на подложке (во влажных помещениях влагостойкий).
- Террасная доска на террасе с покрытием террасным маслом..

Стены:
- Силовой каркас из сухой строганой доски 145*45мм.
- Внутренние стены из сухой строганой доски 95*45мм.
- Ветро-влагозащита Ondutiss Smart A c проклейкой стыков лентой.
- Внешнее утепление минеральной ватой Rockwool Лайт Баттс 150мм.
- Утепление внутренних стен минеральной ватой Rockwool Лайт Баттс 100мм.
- Пароизоляция Ondutiss Smart B.
- Вентиляционный зазор из бруска с внешней и внутренней сторон.
- Внешняя отделка имитация бруса.
- Окраска имитации бруса на выбор - укрывная или лессирующая. Покраска ДО момента монтажа в специально оборудованной покрасочной камере.
- Внутренняя отделка сухих помещений - вагонка Штиль со шлифовкой.
- Окраска вагонки 1 слоем грунта и 2 слоям краски (в базовой комплектации белый, можно заменить цвет на выбор заказчика по карте цветов RAL). Покраска ДО момента монтажа в специально оборудованной покрасочной камере.
- Внутренняя отделка душевой - кварц-винил + вагонка Штиль с покраской.

Кровля:
- Стропильная система из сухой строганой доски 195*45мм.
- Ветро-влагозащита Ondutiss Smart A c проклейкой стыков лентой.
- Утепление минеральной ватой Rockwool Лайт Баттс 200мм.
- Пароизоляция Ondutiss Smart B.
- OSB-3.
- Гидроизоляционный слой.
- ПВХ мембрана.

Окна и двери:
- Окна - двухкамерные энергосберегающие стеклопакеты с четырёхкамерным профилем по проекту.
- Дверь входная усиленная с терморазрывом.
- Двери межкомнатные ламнированные белые с фурнитурой - 2шт.

Электрика:
- Электрощиток.
- Скрытая электропроводка в гофре по дому.
- Потолочные светильники во всех помещениях (в душевой влагозащищённые).
- Выключатели и розетки (в санузле влагозащищённые).
- Вывод электропроводки на крыльцо для уличного освещения.
- Уличные светильники на крыльце - 1шт.

Сантехника:
- Разводка труб водоснабжения и канализации по дому, вывод на улицу для последующего подключения к коммуникациям.
- Электрический накопительный водонагреватель 30л.
- Унитаз напольный компакт с бачком.
- Душ в сборе (душевая система с тропическим душем, душевой поддон и душевая перегородка).
- Раковина компакт со смесителем и тумбой в санузле.
Дополнительно оплачивается:
- Доставка модульного дома на участок заказчика.
- Транспортно-командировочные расходы для монтажной бригады, если доставка и монтаж за пределами Ленинградской области.
- Фундамент (стоимость зависит от выбранного типа фундамента). Так же вы можете взять хлопоты по установке фундамента на себя - мы предоставим всю необходимую проектную документацию по нему.
- Подключение дома к коммуникациям на участке (водоснабжение, электричество, канализация).

Дополнительные услуги:
Вы всегда можете что-то добавить или изменить в данном проекте. Например, мы можем предоставить вам следующие варианты услуг:
- Система "Тёплый пол" в выбранных помещениях.
- Увеличение количества электроточек (розетки, выходы под освещение, выключатели и т.п.), включая пакет электрики "Новогодний".
- Замена материалов, сантехники, осветительных приборов и других элеметов, включённых в базовую комплектацию на другие по выбору заказчика.
- Установка печи-камина с дымоходом.
- Внесение изменений в существующий проект (толщина теплоизоляции, дополнительные окна, смещение внутренних перегородок и т.п.)

Стоимость дополнительных работ рассчитывается индивидуально.
Хотите приобрести данный дом? Остались вопросы? Звоните и приезжайте на экскурсию на наше производство!
Адрес нашего производства
  • МДомРоссияЛенинградская область, Гатчинский район, п.Новый Свет110А
  • +79516597809
  • mdom47@mail.ru