Проект дома Кедр+ МД-3,0-56.

Модульный дом с террасой общей площадью 56м2.

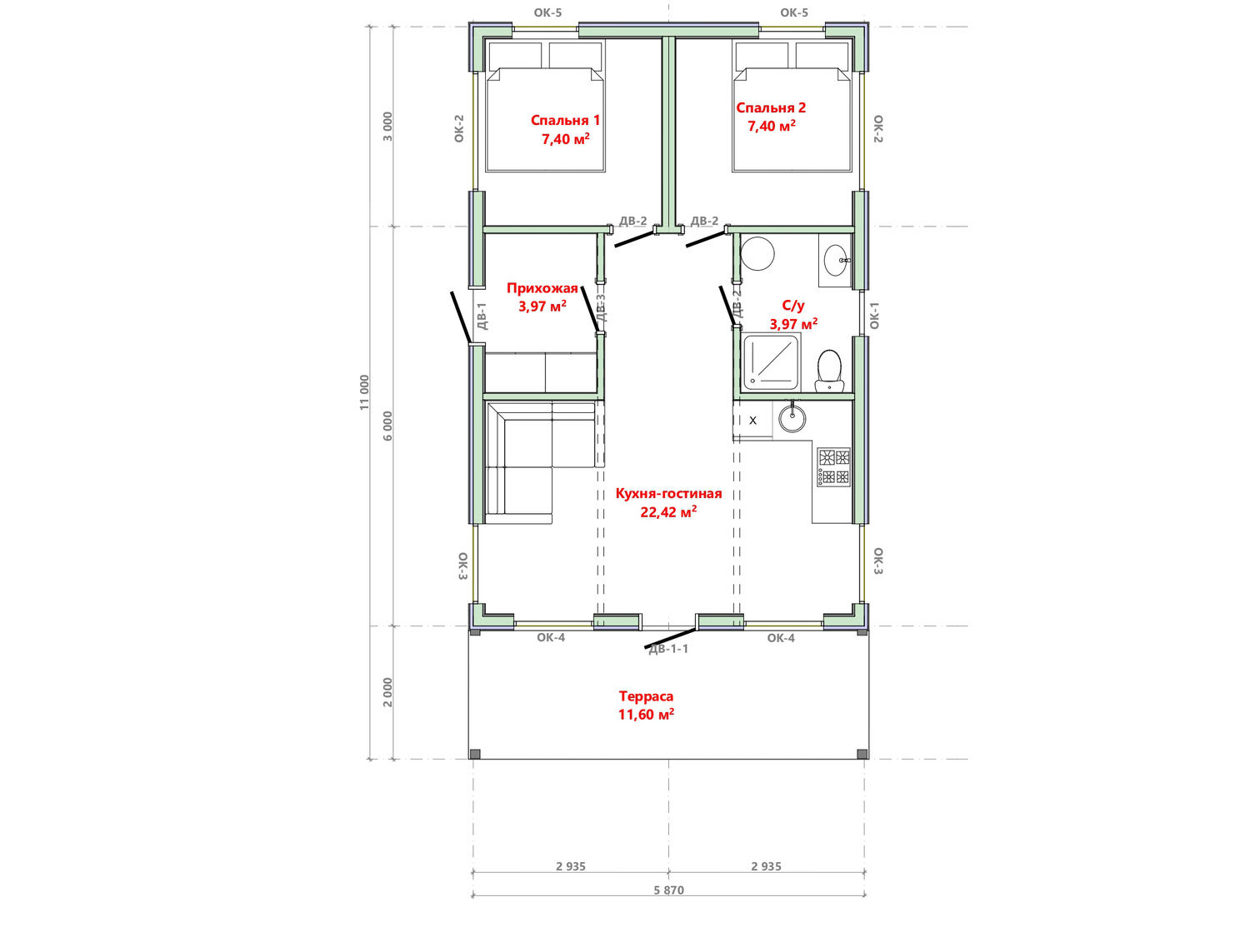
Просторный дом с двумя спальнями для комфортного круглогодичного проживания. Отдельный вход сбоку и изолированная прихожая, просторная кухня-гостиная, очень большая крытая терраса и большие панорамные окна.

Базовая комплектация под ключ "заходи и живи" и включает в себя полностью готовый к проживанию дом с утеплением, внутренней и внешней отделкой, панорамным остеклением и межкомнатными дверьми, а так же разводку труб канализации и водоснабжения, сантехнику (унитаз, раковину, душевую систему с поддоном и душевой перегородкой, а так же электрический накопительный водонагреватель 50л.), базовый пакет электрики (розетки, выключатели, светильники) и систему вентиляции.
от 3`680`000р.
Подробнее о проекте.

Площадь застройки: 66,53м2.
Площадь помещений: 45,18м2.
Общая площадь, включая террасу: 56,78м2.
Высота потолков: 1,99-2,72м.
Утепление: Стены 150мм, пол и потолок 200мм.

В базовую комплектацию включено:

Полы:
- Основание из сухой строганой доски 195*45мм.
- Защитная сетка от грызунов.
- Ветро-влагозащита Ondutiss Smart A c проклейкой стыков лентой.
- Утепление минеральной ватой Rockwool Лайт Баттс 200мм.
- Пароизоляция Ondutiss Smart B c проклейкой стыков лентой.
- Обрешётка сухой строганой доской.
- OSB-3 в сухих помещениях и ГВЛ во влажных.
- Ламинат 33 класса на подложке (во влажных помещениях влагостойкий).
- Террасная доска на террасе с покрытием террасным маслом.

Стены:
- Силовой каркас из сухой строганой доски 145*45мм.
- Внутренние стены из сухой строганой доски 95*45мм.
- Ветро-влагозащита Ondutiss Smart A c проклейкой стыков лентой.
- Внешнее утепление минеральной ватой Rockwool Лайт Баттс 150мм.
- Утепление внутренних стен минеральной ватой Rockwool Лайт Баттс 100мм.
- Пароизоляция Ondutiss Smart B.
- Вентиляционный зазор из бруска с внешней и внутренней сторон.
- Внешняя отделка имитация бруса.
- Окраска имитации бруса на выбор - укрывная или лессирующая. Покраска ДО момента монтажа в специально оборудованной покрасочной камере.
- Внутренняя отделка сухих помещений - вагонка Штиль со шлифовкой.
- Окраска вагонки 1 слоем грунта и 2 слоям краски (в базовой комплектации белый, можно заменить цвет на выбор заказчика по карте цветов RAL). Покраска ДО момента монтажа в специально оборудованной покрасочной камере.
- Внутренняя отделка санузла - кварц-винил + вагонка Штиль с покраской.

Кровля:
- Стропильная система из сухой строганой доски 195*45мм.
- Ветро-влагозащита Ondutiss Smart A c проклейкой стыков лентой.
- Утепление минеральной ватой Rockwool Лайт Баттс 200мм.
- Пароизоляция Ondutiss Smart B.
- Обрешётка из сухой строганой доски.
- Профлист С20 с полимерным покрытием.
- Водосточная система.

Окна и двери:
- Окна - двухкамерные энергосберегающие стеклопакеты с четырёхкамерным профилем по проекту.
- Дверь входная - двухкамерный энергосберегающий стеклопакет с четырёхкамерным профилем по проекту.
- Двери межкомнатные ламнированные с фурнитурой - 4 шт.

Электрика:
- Электрощиток.
- Скрытая электропроводка в гофре по дому.
- Потолочные светильники во всех помещениях (в санузле влагозащищённые).
- Выключатели и розетки (в санузле влагозащищённые).
- Вывод электропроводки на крыльцо для уличного освещения.
- Уличные светильники на крыльце - 2шт.

Сантехника:
- Разводка труб водоснабжения и канализации по дому, вывод на улицу для последующего подключения к коммуникациям.
- Электрический накопительный водонагреватель 50л.
- Унитаз напольный компакт с бачком.
- Душевая кабина в сборе (душевая система с тропическим душем, душевой поддон и душевая перегородка).
- Раковина со смесителем и тумбой в санузле.
Дополнительно оплачивается:
- Доставка модульного дома на участок заказчика.
- Транспортно-командировочные расходы для монтажной бригады, если доставка и монтаж за пределами Ленинградской области.
- Фундамент (стоимость зависит от выбранного типа фундамента). Так же вы можете взять хлопоты по установке фундамента на себя - мы предоставим всю необходимую проектную документацию по нему.
- Подключение дома к коммуникациям на участке (водоснабжение, электричество, канализация).

Дополнительные услуги:
- Система "Тёплый пол" в выбранных помещениях.
- Увеличение количества электроточек (розетки, выходы под освещение, выключатели и т.п.), включая пакет электрики "Новогодний".
- Замена материалов, сантехники, осветительных приборов и других элеметов, включённых в базовую комплектацию на другие по выбору заказчика.
- Установка печи-камина с дымоходом.
- Внесение изменений в существующий проект (толщина теплоизоляции, дополнительные окна, смещение внутренних перегородок и т.п.)

Стоимость дополнительных работ рассчитывается индивидуально.

3D визуализация интерьера дома.

Хотите приобрести данный дом? Остались вопросы? Звоните и приезжайте на экскурсию на наше производство!
Дизайн проект с расстановкой мебели от нашей компании. Мебель в базовую комплектацию не входит, дизайн проект создан нами для вашего вдохновения.
Адрес нашего производства
  • МДомРоссияЛенинградская область, Гатчинский район, п.Новый Свет110А
  • +79516597809
  • mdom47@mail.ru