Проект бани Кедр МБ-2,0-21.

Модульная баня площадью 21м2.

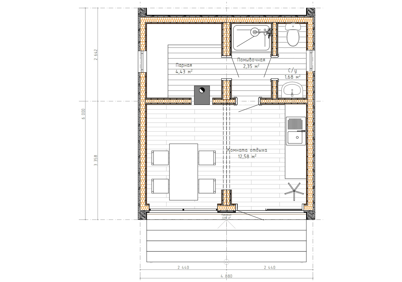
Эту баню с лёгкостью можно использовать и как отдельно баню, и как жилой дом с парной (постоянный, временный, гостевой, для сдачи в аренду (глемпинг), так как она имеет просторную комнату отдыха в которой с лёгкостью разместится кухня и зона отдыха с раскладным диваном. Дополнительным плюсом является раздельный сан.узел для большего комфорта.

Базовая комплектация включает в себя полностью готовую для использования баню с утеплением, панорамным остеклением и дверьми. Но самое главное - банную печь-камин, сауну с полоками, а так же разводку труб канализации и водоснабжения, сантехнику, базовый пакет электрики и систему вентиляции. Монтаж на участке так же включён в стоимость.
Подробнее о проекте.

Полы:
- Основание из сухой строганой доски 145*45мм.
- Защитная сетка от грызунов.
- Ветро-влагозащита Ondutiss Smart A c проклейкой стыков лентой.
- Утепление минеральной ватой Rockwool Лайт Баттс 150мм.
- Пароизоляция Ondutiss Smart B c проклейкой стыков лентой.
- Обрешётка сухой строганой доской.
- OSB-3 в сухих помещениях и ГВЛ во влажных.
- Ламинат 33 класса влагостойкий на подложке в комнате отдыха, душевой и сан.узле.
- Керамогранит в парной.
- Террасная доска на крыльце с покрытием террасным маслом.

Стены:
- Силовой каркас из сухой строганой доски 145*45мм.
- Внутренние стены из сухой строганой доски 95*45мм.
- Ветро-влагозащита Ondutiss Smart A c проклейкой стыков лентой.
- Внешнее утепление минеральной ватой Rockwool Лайт Баттс 150мм.
- Утепление внутренних стен минеральной ватой Rockwool Лайт Баттс 100мм.
- Пароизоляция Ondutiss Smart B.
- В сауне пароизоляция с фольгированием Ondutiss Smart Thermo.
- Вентиляционный зазор из бруска с внешней и внутренней сторон.
- Внешняя отделка имитацией бруса со шлифовкой и покраской.
- Окраска имитации бруса на выбор - укрывная или лессирующая. Покраска ДО момента монтажа в специально оборудованной покрасочной камере.
- Внутренняя отделка сухих помещений - вагонка Штиль со шлифовкой.
- Окраска вагонки 1 слоем грунта и 2 слоями укрывной краски (в базовой комплектации белый, можно заменить цвет на выбор заказчика по карте цветов RAL). Покраска ДО момента монтажа в специально оборудованной покрасочной камере.
- Внутренняя отделка санузла - кварц-винил + вагонка Штиль с покраской.
- Отделка парной - вагонка из осины с обработкой воском для бань и саун.

Кровля:
- Стропильная система из сухой строганой доски 145*45мм.
- Ветро-влагозащита Ondutiss Smart A c проклейкой стыков лентой.
- Утепление минеральной ватой Rockwool Лайт Баттс 150мм.
- Пароизоляция Ondutiss Smart B.
- Обрешётка из сухой строганой доски.
- Профлист С20 с полимерным покрытием.
- Водосточная система.

Окна и двери:
- Окна в комнате отдыха - двухкамерные энергосберегающие стеклопакеты с четырёхкамерным профилем по проекту.
- Окна в парной и в санузле - деревянные со стеклопакетом 600*600мм.
- Двери межкомнатные ламинированные с фурнитурой - 2шт.
- Дверь стеклянная в сауну.

Электрика:
- Электрощиток.
- Скрытая электропроводка в гофре по дому.
- Потолочные светильники во всех помещениях (в душевой и санузле влагозащищённые).
- Выключатели и розетки (в санузле влагозащищённые).
- Вывод электропроводки на крыльцо для уличного освещения.
- Уличный светильник на крыльце.
- Банные светильники в парной - 2 шт.

Сантехника:
- Разводка труб водоснабжения и канализации по бане, вывод на улицу для последующего подключения к коммуникациям на участке.
- Электрический накопительный водонагреватель 30л.
- Унитаз напольный компакт с бачком.
- Душевой уголок в сборе (душевая система с тропическим душем, душевой поддон и душевая перегородка).
- Раковина со смесителем и тумбой в санузле.

Банное оборудование:
- Банная печь-камин дровяная.
- Дымоход с трубой.
- Полоки в парной из осины с обработкой воском для бань и саун.
Дополнительно оплачивается:

- Доставка модульного дома на участок заказчика.
- Транспортно-командировочные расходы, если доставка и монтаж за пределами Ленинградской области.
- Фундамент (стоимость зависит от выбранного типа винтового фундамента). Так же вы можете взять хлопоты по установке фундамента на себя - мы предоставим всю необходимую проектную документацию по нему.
- Подключение дома к коммуникациям на участке (водоснабжение, электричество, канализация).

Дополнительные услуги:

- Можжевеловое панно в парную.
- Светодиодная подсветка в парной.
- Система "Тёплый пол" в выбранных помещениях.
- Терраса - крытая или открытая на выбор.
- Увеличение количества электроточек (розетки, выходы под освещение, выключатели и т.п., включая пакет электрики "Новогодний").
- Замена материалов, сантехники, банной печи, осветительных приборов и других элеметов, включённых в базовую комплектацию на другие по выбору заказчика.
- Внесение изменений в существующий проект (толщина теплоизоляции, дополнительные окна, смещение внутренних перегородок и т.п.)

3D визуализация интерьера бани.

Хотите приобрести эту баню? Остались вопросы? Звоните и приезжайте на экскурсию на наше производство!
Адрес нашего производства
  • МДомРоссияЛенинградская область, Гатчинский район, п.Новый Свет110А
  • +79516597809
  • mdom47@mail.ru
Дизайн проект с расстановкой мебели от нашей компании. Мебель в базовую комплектацию не входит, дизайн проект создан нами для вашего вдохновения.