Проект бани Ясень+ МБ-1,0-16.

Модульная баня площадью 16м2.

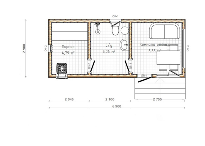
Компактная баня с комнатой отдыха с большими панорамными окнами для лучшего обзора вашего участка и очень просторным санузлом, где есть не только душ, но и унитаз, и раковина.

Базовая комплектация "заходи и парься" включает в себя полностью готовую для использования баню с утеплением, кровлей, окнами, дверьми, внешней и внутренней отделкой, а так же электрикой (освещение, розетки, выключатель), сантехникой (унитаз, душевой уголок, раковина и накопительный водонагреватель). Но самое главное - банную печь (дровяную или электрическую на выбор) и парную с полками. Монтаж на участке так же включён в стоимость.
Подробнее о проекте.

Площадь застройки: 21м2.
Площадь помещений: 16,51м2.
Высота потолков: 2,0-2,3м.
Утепление: Стены 100мм, пол и потолок 150мм.

В базовую комплектацию включено:

Полы:
- Основание из сухой строганой доски 145*45мм.
- Защитная сетка от грызунов.
- Ветро-влагозащита Ondutiss Smart A c проклейкой стыков лентой.
- Утепление минеральной ватой Rockwool Лайт Баттс 150мм.
- Пароизоляция Ondutiss Smart B c проклейкой стыков лентой.
- Обрешётка сухой строганой доской.
- OSB-3 в сухих помещениях и ГВЛ во влажных.
- Ламинат 33 класса влагостойкий на подложке в комнате отдыха и санузле.
- Керамогранит в парной.

Стены:
- Силовой каркас из сухой строганой доски 95*45мм.
- Внутренние стены из сухой строганой доски 95*45мм.
- Ветро-влагозащита Ondutiss Smart A c проклейкой стыков лентой.
- Внешнее и внутреннее утепление минеральной ватой Rockwool Лайт Баттс 100мм.
- Пароизоляция Ondutiss Smart B.
- В парной пароизоляция с фольгированием Ondutiss Smart Thermo.
- Вентиляционный зазор из бруска с внешней и внутренней сторон.
- Внешняя отделка имитацией бруса со шлифовкой и покраской.
- Окраска имитации бруса на выбор - укрывная или лессирующая. Покраска ДО момента монтажа в специально оборудованной покрасочной камере.
- Внутренняя отделка комнаты отдыха - вагонка Штиль со шлифовкой и покраской.
- Окраска вагонки 1 слоем грунта и 2 слоям краски (в базовой комплектации белый, можно заменить цвет на выбор заказчика по карте цветов RAL). Покраска ДО момента монтажа в специально оборудованной покрасочной камере.
- Внутренняя отделка санузла - вагонка Штиль со шлифовкой и покраской и кварцвинил.
- Отделка парной - вагонка из осины с обработкой воском для бань и саун.

Кровля:
- Стропильная система из сухой строганой доски 145*45мм.
- Ветро-влагозащита Ondutiss Smart A c проклейкой стыков лентой.
- Утепление минеральной ватой Rockwool Лайт Баттс 150мм.
- Пароизоляция Ondutiss Smart B.
- Обрешётка из сухой строганой доски.
- Профлист С20 с полимерным покрытием.

Окна и двери:
- Окна двухкамерные энергосберегающие стеклопакеты с четырёхкамерным профилем по проекту.
- Окно в сауну деревянное со стеклопакетом.
- Дверь входная двухкамерный энергосберегающий стеклопакет с четырёхкамерным профилем.
- Дверь в санузел ламинированная с фурнитурой.
- Дверь стеклянная в сауну.

Электрика:
- Электрощиток.
- Скрытая электропроводка в гофре по дому.
- Потолочные светильники (в санузле влагозащищённые).
- Выключатели и розетки (в санузле влагозащищённые).
- Вывод электропроводки на крыльцо на влагозащищённую розетку и для уличного освещения.
- Уличный светильник на крыльце.
- Банные светильники в парной - 2 шт.

Сантехника:
- Разводка труб водоснабжения и канализации по бане, вывод на улицу для последующего подключения к коммуникациям на участке.
- Электрический накопительный водонагреватель 30л.
- Душевой уголок в сборе (душевая система с тропическим душем, душевой поддон и душевая перегородка).
- Унитаз напольный компакт с бачком.
- Раковина со смесителем и тумбой.

Банное оборудование:
- Банная печь дровяная и электрическая на выбор.
- Дымоход с трубой.
- Полки в парной из осины с обработкой воском для бань и саун.
Дополнительно оплачивается:
- Доставка модульного дома на участок заказчика.
- Транспортно-командировочные расходы, если доставка и монтаж за пределами Ленинградской области.
- Фундамент (стоимость зависит от выбранного типа винтового фундамента). Так же вы можете взять хлопоты по установке фундамента на себя - мы предоставим всю необходимую проектную документацию по нему.
- Подключение дома к коммуникациям на участке.

Дополнительные услуги:
- Можжевеловое панно в парную.
- Светодиодная подсветка в парной.
- Система "Тёплый пол" в выбранных помещениях.
- Терраса - крытая или открытая на выбор.
- Увеличение количества электроточек (розетки, выходы под освещение, выключатели и т.п.), включая пакет электрики "Новогодний".
- Замена материалов, сантехники, банной печи, осветительных приборов и других элеметов, включённых в базовую комплектацию на другие по выбору заказчика.
- Внесение изменений в существующий проект (толщина теплоизоляции, дополнительные окна, смещение внутренних перегородок и т.п.)

Хотите приобрести эту баню? Остались вопросы? Звоните и приезжайте на экскурсию на наше производство!
Адрес нашего производства
  • МДомРоссияЛенинградская область, Гатчинский район, п.Новый Свет110А
  • +79516597809
  • mdom47@mail.ru